Issaquah city council approves purchase of 46-acre Bergsma property for open space
Published 6:30 am Monday, December 17, 2018
The Issaquah City Council voted to pursue the acquisition of 46 acres on Cougar Mountain, known as the Bergsma property, at its Dec. 3 meeting.
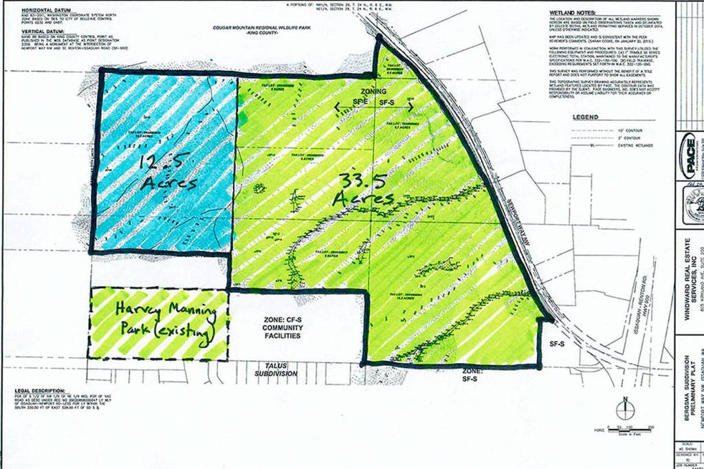
After a year of work and discussion on an acquisition, staff presented a plan to the city council of how it could purchase the 46-acre property and conserve the land to prevent it from being developed by a private developer. The Bergsma property is located on the northeast corner of Cougar Mountain and has been the proposed site of development multiple times in the past.
Jeff Watling, parks and recreation director, said the most recent proposal came in 2017 when an application was submitted for a 57-unit residential development on the property. Concerns about development from Issaquah citizens, he said, surrounded environmental impacts, traffic, neighborhood and visual impacts.
The city of Issaquah wants to acquire the hillside land to preserve it as open space and to increase connectivity the existing trail system through the area, specifically the Tibbetts Valley Area connecting to the Cougar Mountain trail system. The preservation of the land fits he Central Issaquah Plan and Green Necklace vision, including protecting wildlife habitats as well as streams and tributaries.
In January, the city began working with the Trust for Public Lands (TPL) on a partnership to explore possible options. After TPL’s full appraisal of the property came to $10.5 million, and through negotiations with the developer, the option to purchase agreement was entered into for a total of $11 million, with an expiration date of Dec. 31, 2018, which gives the city 60 days after that deadline to close the purchase.
Funding and timing is the biggest concern, and multiple types of funding sources were identified. As part of the partnership to help fund the purchase, the city and TPL partnered with King County. The county pay $355,000 to own the 12.5 acre’s on the west side of the property, and the city will take the remaining 33 acres on the east side for $10.645 million.
Funding will be a “multi-agency, multi-source effort,” Watling said. The city estimates that $6.82 million in grants will be gathered over the next three to four years, which would leave the city’s long term commitment to roughly $3.8 million. Like other city acquisitions, he explained, the grants would reimburse the city for the payment and would not be used for the purchase itself since they would be awarded over a longer period of time.
Specifically staff discussed the county’s Land Conservation Initiative program as a primary source of funding for the project that is planned to bring in more than $5 million. State and other grant resources are predicted to bring in $1.5 million.
Planning for a late February closing, the city would need to bring $7.645 million for the purchase along with the TPL’s $3 million of interest-free bridge funding and the county’s $355,000. The staff will come back to the council on Jan. 7, 2019, to discuss funding options for the purchase. Potential strategies for funding the $7.645 million, include the staff-recommended option of using a blend of the city’s fund balance and a bank loan.
Through a 5-1 vote, the city council gave the mayor approval to proceed with the purchase. Councilmember Tola Marts was the dissenting vote.
Marts expressed discomfort over the financial risk associated with grant funding, and cited the work the council will be doing on the strategic plan that features 22 objectives and more than 80 action items. While strategic land acquisition is part of the strategic plan, there are many other parts to it, he said, including $40 million of parks and recreation projects and $475 million in transportation projects in the Capital Improvement Plan. The other elements represent significant challenges, and Marts said the city should discuss prioritization.
The other councilmembers in attendance voted in support of the agenda bill, citing the benefits the purchase would bring to the city now and in the future. Councilmember Victoria Hunt spoke about the city’s history of conservation and the current community’s passion for the environment. She also spoke about the benefit of increased access to the nearby transit center, and the added connection to Harvey Manning Park. Hunt also stressed the importance of maintaining the city’s character and environment while the region experiences growth.
The councilmembers that voted in favor acknowledged the financial risk associated with the purchase, but they were confident in the financial standing of the city and the ability of staff to seek grant funding and the partnerships built with other organizations.
