Issaquah City Council approves funding plan for Bergsma property purchase
Published 6:30 am Saturday, January 12, 2019
The Issaquah City Council approved the staff recommended funding option for the Bergsma property acquisition at their first meeting of 2019.
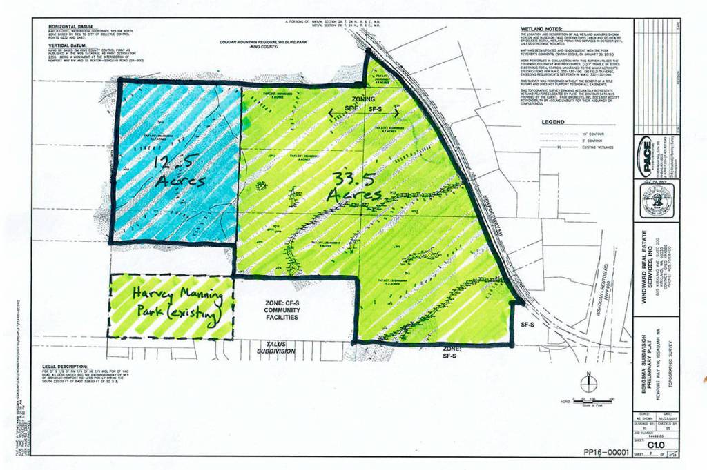
At its final meeting of 2018 on Dec. 3, the city council approved the purchase of the 46-acre Bergsma property on Cougar Mountain. The acquisition will preserve the land as open space and increase connectivity with the existing trail system through adjacent properties.
The land acquisition is a joint effort with King County and the Trust for Public Lands. As part of the $11 million purchase, the city must pay more than $7.6 million at closing, which is expected to be on Feb. 28. While the decision was made to more forward with the acquisition, the council directed city staff to bring back a proposal on funding options at the first meeting in January.
During the Jan. 7 council meeting, interim finance director Beth Goldberg presented four funding options to the council. The staff-recommended funding option was a hybrid strategy using a combination of general fund balance and a bank loan. The funding amount would be split nearly even between the two sources, with $3.822 million from the general fund and $3.823 million from a bank loan.
The funding ordinance also authorizes city staff to pursue grant funding for the purchase which would offset and replenish the general fund balance. Using the hybrid method also gets the city a lower interest rate on the loan compared to financing the whole purchase on a loan, Goldberg said.
The staff-recommended option — also known as option 1 — was explained by Goldberg as the best path for the city as it blends the short- and long-term costs to both current and future taxpayers and allows the city flexibility with their remaining fund balance.
The council was supportive of the staff recommendation and approved the ordinance in a unanimous 6-0 vote. Councilmember Victoria Hunt said spreading the funding between sources made sense with the intended use of the land.
“The hybrid option will allow some of the funding to come from our current city taxpayers and will also allow us to have the future taxpayers (pay as well),” she said. “Since this is open space and it will be of value to the city today and also the future, I think that hybrid approach makes sense.”
The council also approved an ordinance amending the 2019 budget to reflect the Bergsma purchase funding option previously adopted and approved an ordinance allowing the city to accept private donations tooffset the cost of the Bergsma property purchase.
Goldberg said the city was approached by several individuals asking to make donations to help the Bergsma purchase, but the council has to authorize the city to take donations. Both the budget amendment and donation approval were approved unanimously by the council.
